Property Details
$ 1,725,000
4432 Dorothy Street
Bellaire, TX 77401
4432 Dorothy Street
Bellaire, TX 77401
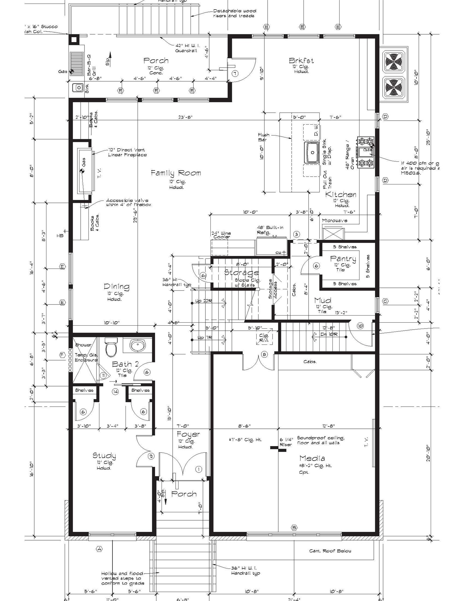
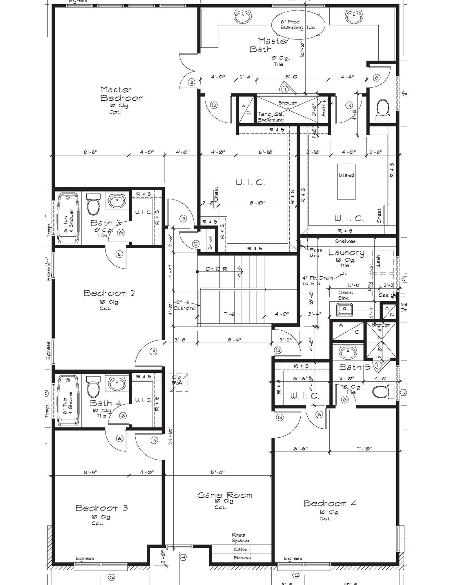
Construction will begin soon on this exceptional custom home by Kiew Custom Builders. This thoughtfully designed residence features five bedrooms, five full bathrooms. Rare mother-in-law suite on 1st floor or a study can be customized with your personal selection. 12" ceiling and high-end appliances are the highlights of this home. The first floor is ideal for entertaining and everyday living, offering spacious family living areas, a game room, study, and dining room. The primary suite is located on the second floor and includes a luxurious bathroom along with separate his-and-hers closets. Three additional bedroomseach with its own en-suite bathplus a versatile flex room complete the second level. Convenience is enhanced with laundry rooms on both floors. Ideally located within walking distance to Horn and Evergreen Park and the community pool, this home offers both comfort and accessibility in an excellent neighborhood. Possibility to tour previous homes built by builder.
Need to Sell Your House First?
Find Out What It's Worth